г. Владимир, ул.Столетовых, дом № 5, офис 1
Клиентам
Вентиляция, аспирация, кондиционирование
Мультисплит-системы
Мультисплит-системы
Мультизональные системы
Мультизональные системы
Противодымная вентиляция
Противодымная вентиляция
Аспирация воздуха на производстве
Аспирация воздуха на производстве
Вентиляция производственных цехов
Вентиляция производственных цехов
Вентиляция предприятий HoReCa
Вентиляция предприятий HoReCa
Проектирование вентиляции
Проектирование вентиляции
Вентиляция «чистых» помещений
Вентиляция «чистых» помещений
Центральное кондиционирование
Центральное кондиционирование
Системы увлажнения
Системы увлажнения
Сплит-системы
Сплит-системы
Вентиляция бань, саун, бассейнов
Вентиляция бань, саун, бассейнов
Вентиляция многоквартирных домов
Вентиляция многоквартирных домов
Вентиляция офисов и бизнес-центров
Вентиляция офисов и бизнес-центров
Вентиляция частных домов и коттеджей
Вентиляция частных домов и коттеджей
Диагностика и сервисное обслуживание
Диагностика и сервисное обслуживание
Автоматизация и диспетчеризация
Автоматизация и диспетчеризация
Прецизионное кондиционирование
Прецизионное кондиционирование
Кондиционирование системой «чиллер»
Кондиционирование системой «чиллер»

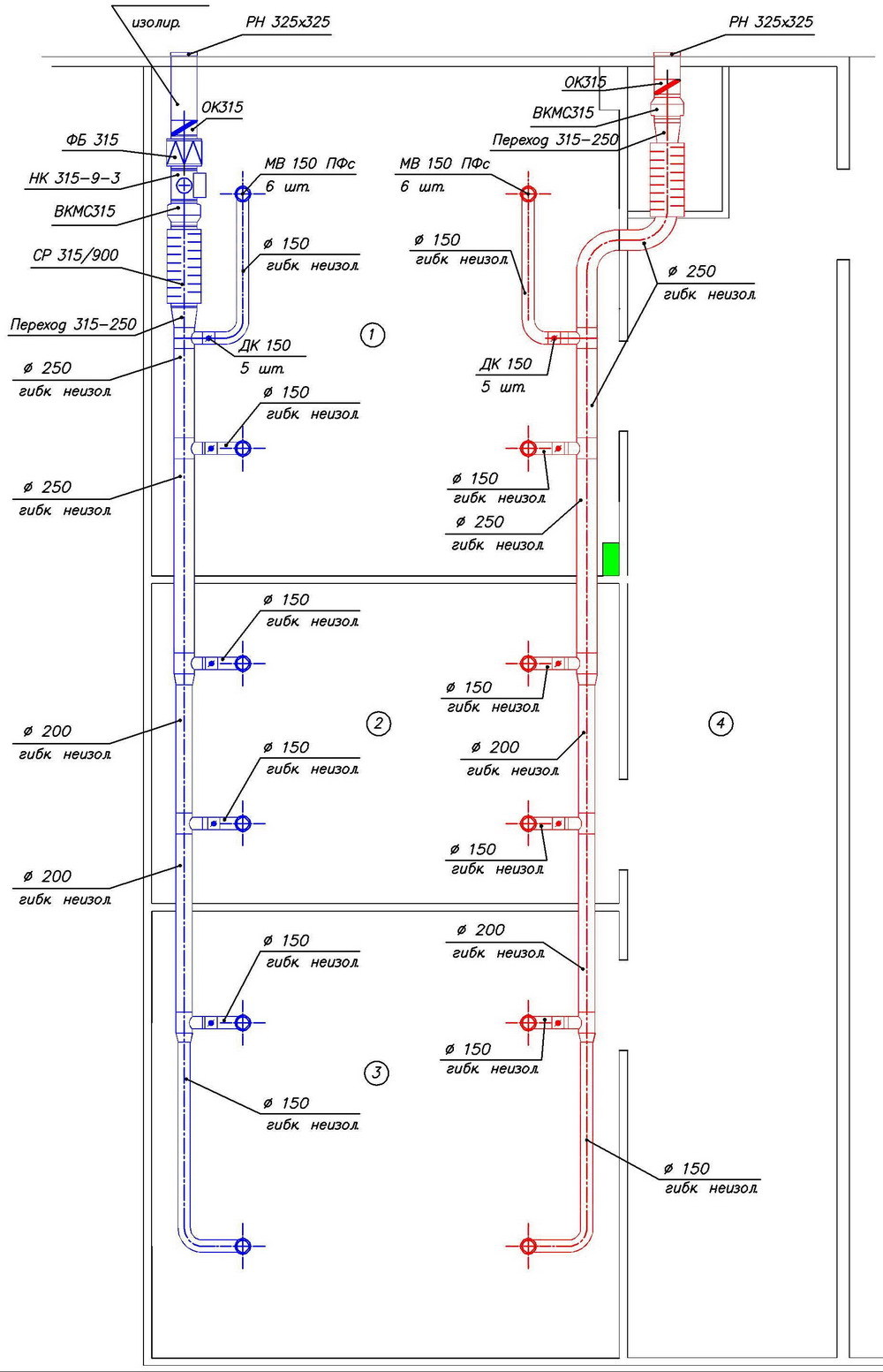
Вентиляция производственных цехов

Наша задача – с помощью вентиляции обеспечить бесперебойность и качество производственного процесса
Вентиляция производственных цехов
Монтаж вентиляции в производственном цехе
Монтаж вентиляции производственных цехов требует учета многих специфических условий, главное из которых – учет типа производства. Если производство связано, например, с выделением большого количества пыли и тепла, то в этом случае устанавливаются мощные вентиляторы, задачей которых будет удаление выбросов из цеха и отвод излишнего теплового излучения.
Кондиционирование в таких цехах экономически нецелесообразно и поэтому достаточно монтажа только приточно-вытяжной вентиляции. Если же на предприятии используется высокоточное оборудование, или продукция не должна подвергаться перепадам температур, то в этом случае наилучшим вариантом станет монтаж вентиляционной системы с функцией охлаждения, которая способна поддерживать точно заданную температуру.
Некоторые системы вентиляции способны удалять твердые отходы с места производства (стружка, пыль). Данная система использует специальные устройства, которые отделяют отходы от воздуха и собирают в бункер.
Цена от
1 000 000 ₽ / услуга
Василий Бирюков
Директор ООО «‎Компания Сиверс»‎
Наша задача с помощью вентиляции обеспечить бесперебойность и качество производственного процесса.

При создании проекта промышленной вентиляции и его воплощении в жизнь строго руководствуемся ГОСТами и СП, а также внуфирменными требованиями, гарантирующими высокое качество выполнения работ.
Способы монтажа вентиляции
Монтаж вентиляции производственных помещений осуществляется несколькими способами:
  • Приточным;
  • Вытяжным;
  • Приточно-вытяжным.

На крупных производствах применяется исключительно последний вариант. В частных мастерских и небольших цехах обычно монтируется механическая вытяжная вентиляция производственных помещений.

Приток свежего воздуха обычно происходит путём аэрации или инфильтрации, как разновидностей естественной вентиляции. В небольшом производственном помещении вытяжной механической вентиляции обычно бывает достаточно. По охвату помещений различают местную и общеобменную промышленную вентиляцию. Часто используются одновременно оба типа.

Общеобменная вентиляция призвана бороться с чрезмерным повышением температуры производственного помещения в процессе протекания технологических процессов. Местная вентиляция монтируется в местах наиболее значительного выброса ядовитых веществ или технологической пыли.
Особые требования предъявляются к монтажу местной вытяжной вентиляции: она должна быть организована таким образом, чтобы вредные производственные выбросы не оказались в зоне вдыхаемого рабочими воздуха.

Расчёт вентиляции промышленных помещений производится таким образом, чтобы не дать распространится вредным веществам по всему цеху. Благодаря действию общеобменной вентиляции, концентрация вредных веществ приводится к допустимой норме.

По времени действия вентиляция складов и производственных помещений может быть постоянной и аварийной. Постоянная вентиляция должна работать так, чтобы при штатном режиме работы производства поддерживать в помещении нормальный микроклимат.

Аварийная вентиляция включается в работу тогда, когда при каких-либо обстоятельствах выходит из строя или не справляется с вентилированием помещения основная вентиляция.
Василий Бирюков
Директор ООО «‎Компания Сиверс»‎
Проектирование систем производственной вентиляции имеет свою специфику. Не существует универсального оборудования, способного удовлетворить потребности всех типов производств.

Наша компания при проектировании берет в расчет множество входных данных.
Василий Бирюков
Директор ООО «‎Компания Сиверс»‎
На заметку! Создание и проектирование вентиляции в производственных цехах любого назначения должны доверяться исключительно профессионалам, которые обеспечат соблюдение всех необходимых нормативов и выполнят расчеты с учетом особенностей вашего производства.